Unikalne, 5 pokojowe mieszkanie przy metrze

lokalizacja: Warszawa, Zaborowska

2 599 000,00 PLN

17 396,25 PLN

Opis nieruchomości

English version below


WYJĄTKOWE
5 POKOJOWE MIESZKANIE NA POGRANICZU BEMOWA I WOLI PRZY UL. Zaborowskiej 3!

Mieszkanie Idealne dla rodziny ceniącej sobie przestrzeń i bliskość do ważnych punktów komunikacyjnych i usługowych Warszawy. Ładne, zadbane, strzeżone osiedle idealne dla dużej rodziny. Zaledwie 850m do stacji metra Ulrychów i Ratusz Bemowo.

W SKRÓCIE:

  • Lokalizacja: Zaborowska 3, Bemowo
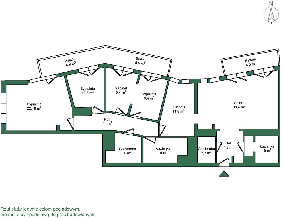
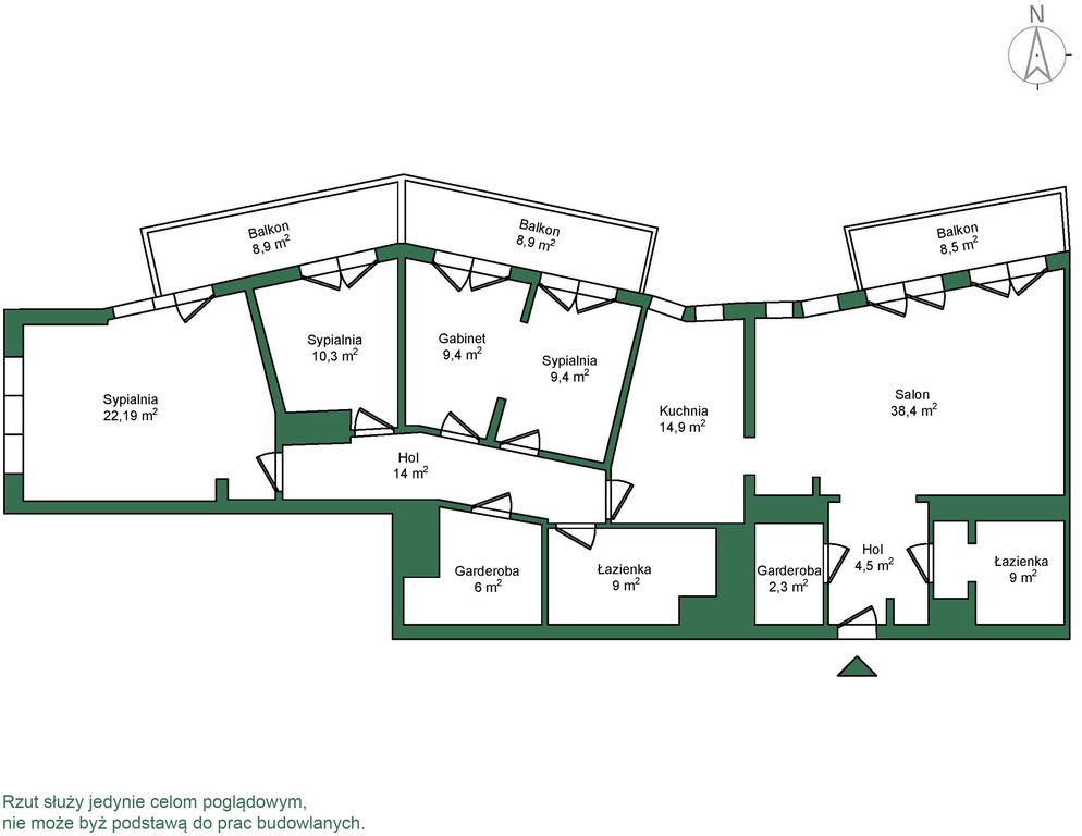
  • Metraż: 149,4 m²
  • 5 Pokoi
  • Wysoki Standard - gotowe do zamieszkania
  • 3 przestronne balkony
  • Oddzielona przestrzeń dzienna od sypialnianej
  • Dodatkowo: boks rowerowy (ok. 2,5 m²)
  • Dwa miejsca parkingowe
  • Strzeżone, zamknięte osiedle z 2010 roku


SZCZEGÓŁY:

Mieszkanie znajduje się na 2. piętrze 6-piętrowego budynku z 2010. Osiedle "Trzy Korony" wybudowane zostało w wysokim standardzie przez renomowanego wykonawcę - firmę Budimex.

UKŁAD POMIESZCZEŃ:
  • Salon – 38,4 m² z wyjściem na balkon 8,5 m²
  • 3 Sypialnie – 22,19 m², 10,3 m², 9,4 m² - sypialnie z wyjściem na 2 balkony po 8,9 m²
  • Gabinet - 9,4 m²
  • Kuchnia - 14,9 m²
  • 2 Garderoby - 6 m² i 2,3 m²
  • 2 Łazienki z WC – po 9 m²
  • 2 Hole - 14m2 m² i 4,5 m²

Dodatkowo: Piwnica (ok. 2,5 m²) 30.000zł i dwa samodzielne miejsca parkingowe w garażu podziemnym po 65.000zł każde.
Zjazd do garażu bezpośrednio widną z klatki schodowej.


MIESZKANIE:

Mieszkanie wykończone w wysokim standardzie. Meble w zabudowie wykonane na zamówienie przez stolarza. W całym mieszkaniu położony jest parkiet dębowy. Kuchnia w pełni wyposażona. Bardzo korzystny rozkład pomieszczeń - przestrzeń dzienna jest oddzielona od przestrzeni sypialnianej. Drewniane, duże okna zapewniają odpowiednie nasłonecznienie mieszkania.

STAN PRAWNY:

Pełna własność z Księgą Wieczystą

Możliwość finansowania kredytem (polecamy sprawdzonego Doradcę Kredytowego)

KIERUNEK OKIEN:

Północ i Zachód (mieszkanie jest bardzo dobrze doświetlone dzięki dużym oknom)

BUDYNEK:

- Data budowy 2010 rok
- Przystosowany dla osób niepełnosprawnych
- Dwie windy
- Plac zabaw na terenie osiedla
- Bardzo zadbane osiedle - ogrodnicy dbają o bujną zieleń.

Mieszkanie Idealne dla rodziny, lub pod cele inwestycyjne, biurowe - istnieje możliwość podzielenia mieszkania na dwa oddzielne.

LOKALIZACJA I KOMUNIKACJA

Główne zaletą nieruchomości jest lokalizacja. Odległość do Centrum Warszawy - 5000m

W pobliżu:
- C.H Wola Park - 500m
- Stacja metra Ratusz Bemowo - 850m
- Stacja metra Ulrychów - 850m
- Szkoła podstawowa - 900m
- autobus/tramwaj - odpowiednio 400m/900m
- C.H Górczewska- 1300m
- wjazd na trasę S8 - 2200m


KOMUNIKACJA:

Mieszkanie przy jest świetnie skomunikowane z resztą miasta – zarówno dla osób korzystających z samochodu, roweru, komunikacji miejskiej, jak i poruszających się pieszo.
W promieniu 2 km znajduje się aż 6 szkół podstawowych i kilkanaście przedszkoli i żłobków.

Najbliższe przystanki autobusowe:
  • Przystanek "Konarskiego" (linie: 190, 523, 171, 167 ) – około 500 m

Najbliższe przystanki tramwajowe:
  • Przystanek "Marynin" (linie: 20, 23, 24) – około 700 m
  • Przystanek "Ratusz Bemowo" (linie: 10, 26) - około 900 m

Metro:
  • Stacja "Metro Ulrychów" (linia M2) – około 900 m
  • Stacja Metro '"Ratusz Bemowo) - około 950 m
  • Park Górczewska – 800 m (10 min)
  • Centrum Handlowe Wola Park – 1 km (12 min)

Sklepy i galerie:
  • Żabka – 200 m
  • Biedronka – 500 m
  • Centrum Handlowe Wola Park – 1 km

Uczelnie:
  • Wyższa Szkoła Rehabilitacji – 1,5 km
  • Wojskowa Akademia Techniczna - 2 km
  • Akademia Wychowania Fizycznego – 3 km
  • Uniwersytet Warszawski – 5 km


Tereny rekreacyjne:
  • Park Górczewska – 800 m
  • Park Moczydło – 1,5 km


ENGLISH VERSION

EXCEPTIONAL 5-ROOM APARTMENT ON THE BORDER OF BEMOWO AND WOLA AT ZABOROWSKA 3!

An ideal apartment for a family that values space and proximity to key transport and service points in Warsaw. A beautiful, well-maintained, and secure residential complex, perfect for a large family. Only 850m from Ulrychów and Ratusz Bemowo metro stations.

OVERVIEW:
  • Location: Zaborowska 3, Bemowo
  • Size: 149.4 m²
  • 5 Rooms
  • High Standard – ready to move in
  • 3 spacious balconies
  • Separated living and bedroom areas
  • Additional storage unit (approx. 2.5 m²)
  • Two parking spaces
  • Guarded, gated community built in 2010


DETAILS:
The apartment is located on the 2nd floor of a 6-story building from 2010. The "Trzy Korony" estate was built to a high standard by a renowned developer – Budimex.

LAYOUT:
  • Living room – 38.4 m² with access to an 8.5 m² balcony
  • 3 Bedrooms – 22.19 m², 10.3 m², 9.4 m² – with access to 2 balconies (8.9 m² each)
  • Office – 9.4 m²
  • Kitchen – 14.9 m²
  • 2 Walk-in closets – 6 m² and 2.3 m²
  • 2 Bathrooms with WC – 9 m² each
  • 2 Hallways – 14 m² and 4.5 m²


Extras: Storage unit (approx. 2.5 m²) for PLN 30,000 and two separate underground garage parking spaces for PLN 65,000 each.
Direct access to the garage via an elevator from the stairwell.

APARTMENT FEATURES:
The apartment is finished to a high standard, with custom-built furniture made by a carpenter. Oak parquet flooring throughout. The kitchen is fully equipped. A well-thought-out layout separates the living area from the bedroom area. Large wooden windows provide excellent natural lighting.

LEGAL STATUS:
  • Full ownership with Land and Mortgage Register
  • Possible mortgage financing (we recommend a trusted Mortgage Advisor)


WINDOW ORIENTATION:
  • North and West (well-lit thanks to large windows)


BUILDING:
  • Built in 2010
  • Wheelchair accessible
  • Two elevators
  • Playground within the estate
  • Well-maintained estate with professional landscaping


An ideal apartment for a family, investment purposes, or office use – it can be divided into two separate units.
LOCATION & TRANSPORT:The main advantage of this property is its prime location, just 5 km from the city center.

Nearby:
  • Wola Park Shopping Center – 500m
  • Ratusz Bemowo Metro Station – 850m
  • Ulrychów Metro Station – 850m
  • Primary school – 900m
  • Bus/tram stops – 400m/900m
  • Górczewska Shopping Center – 1.3 km
  • S8 expressway entrance – 2.2 km

TRANSPORTATION:

This apartment is well-connected with the rest of the city – whether by car, bicycle, public transport, or on foot.
Within a 2 km radius, there are 6 primary schools and several preschools and nurseries.
Nearest bus stops:
  • "Konarskiego" Stop (Lines: 190, 523, 171, 167) – approx. 500m

Nearest tram stops:
  • "Marynin" Stop (Lines: 20, 23, 24) – approx. 600m
  • "Ratusz Bemowo" Stop (linie: 10, 26) - approx. 900m

Metro Stations:
  • "Ulrychów" Metro Station (M2 Line) – approx. 900m
  • "Ratusz Bemowo" Metro Station (M2 line) - approx. 950m
  • Przystanek "Marynin" (linie: 20, 23, 24) – około 700 m

SHOPS & SHOPPING CENTERS:
  • Żabka – 200m
  • Biedronka – 500m
  • Wola Park Shopping Center – 1 km

UNIVERSITIES:
  • University of Rehabilitation – 1.5 km
  • Military University of Technology – 2 km
  • Academy of Physical Education – 3 km
  • University of Warsaw – 5 km

RECREATIONAL AREAS:
  • Górczewska Park – 800m
  • Moczydło Park – 1.5 km


Kontakt do opiekuna:

RS Real Estate

Beata Puszczewicz
Nieprawidłowy adres E-mail
Mapa

Strona korzysta z plików cookie w celu realizacji usług zgodnie z Polityką prywatności. Możesz określić warunki przechowywania lub dostępu do cookie w Twojej przeglądarce.